1. HOME
  2. 物件詳細

下鴨本通に面した一棟テナント、1・2階使いの店舗事務所

賃料: 19.8万円 専有面積:55.13㎡

物件名:下鴨北園町店舗

所在地:京都府京都市左京区下鴨北園町

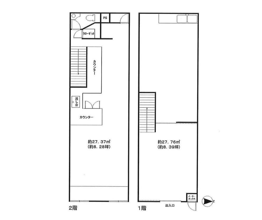
間取り

下鴨本通に面した一棟テナント、1・2階使いの店舗事務所

賃料: 19.8万円 専有面積:55.13㎡

物件名:下鴨北園町店舗

所在地:京都府京都市左京区下鴨北園町

物件概要

下鴨本通に面した一棟テナント物件です。京都地下鉄烏丸線「北山」駅から徒歩圏内、市バス停も近く、日常的なアクセスのしやすさが特徴です。通り沿いに立地しており、来訪者にも場所を伝えやすい環境といえます。 建物は1・2階の構成で、延床面積は約55m2。各階を用途に応じて使い分けることができ、事務所利用はもちろん、教室や物販なども相談可能です。現況渡しのため、内装は使い方に合わせて検討しやすく、レイアウトの自由度も確保されています。 飲食店としての利用は相談となりますが、落ち着いた下鴨エリアで、通りに面した一棟利用を検討されている方には、拠点づくりの選択肢として現実的な物件です。入居時期は相談となりますので、タイミングを含めて柔軟にご検討いただけます。

物件番号 18281
物件名 下鴨北園町店舗
所在地 京都府京都市左京区下鴨北園町
最寄駅/徒歩何分 京都市営地下鉄烏丸線 北山駅まで 徒歩9分
所在階 1階
賃料 19.8万円
保証金 5ヶ月
専有面積 55.13㎡
建物構造 木造階
取引態様 仲介
最終更新日 2026/01/08 14:11

同じエリアの物件

この物件を見た人はこちらの物件も見ています