1. HOME
  2. 物件詳細

祇園四条・清水坂エリア|住居付き店舗一棟、10年定期借家

賃料: 418万円 専有面積:224.21㎡

物件名:東⼭区清⽔4丁⽬店舗

所在地:京都府京都市東山区清水4丁目

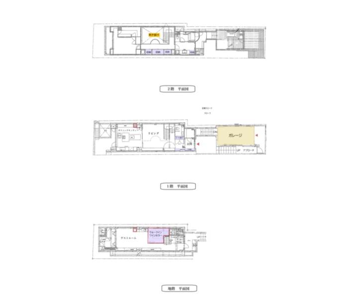
間取り

祇園四条・清水坂エリア|住居付き店舗一棟、10年定期借家

賃料: 418万円 専有面積:224.21㎡

物件名:東⼭区清⽔4丁⽬店舗

所在地:京都府京都市東山区清水4丁目

物件概要

祇園四条駅から徒歩圏、京都市東山区清水4丁目に位置する住居付き店舗の一棟貸し物件です。 観光地としても認知度の高い清水坂エリアにありながら、落ち着いた佇まいが印象的な建物です。 建物はRC造2階建+地下1階、専有面積は約224.21m2。 店舗部分と住居部分が一体となった構成のため、店舗運営と生活拠点を兼ねた使い方や、スタッフ常駐型の運営にも対応しやすいボリュームがあります。 契約形態は10年の定期借家契約。 中長期でエリアに根ざした出店や、明確な事業計画を持った拠点づくりを検討されている方に向いた条件です。 契約期間満了後の取り扱い(再契約の可否等)については、契約時に確認が必要となります。 賃料は月額418万円。 現在は使用中のため、引渡時期については相談となります。 用途や業態についても、立地特性を踏まえた上で個別相談が前提となります。 祇園・清水という特別なエリアで、一棟をどう活かすか。 ブランド性や世界観を重視した出店を検討されている方にとって、検討価値のある一棟です。

物件番号 18469
物件名 東⼭区清⽔4丁⽬店舗
所在地 京都府京都市東山区清水4丁目
最寄駅/徒歩何分 京阪本線 祇園四条駅まで 徒歩18分
所在階 1階
賃料 418万円
敷金・礼金 敷金 4ヶ月・礼金 1ヶ月
専有面積 224.21㎡
建物構造 RC(鉄筋コンクリート)階
取引態様 仲介
最終更新日 2026/01/30 22:29

同じエリアの物件

この物件を見た人はこちらの物件も見ています