1. HOME
  2. 物件詳細

五辻通沿い・一棟貸し3フロアの事業用物件

賃料: 49.5万円 専有面積:254.24㎡

物件名:岸田ビル

所在地:京都府京都市上京区五辻通大宮西入五辻町

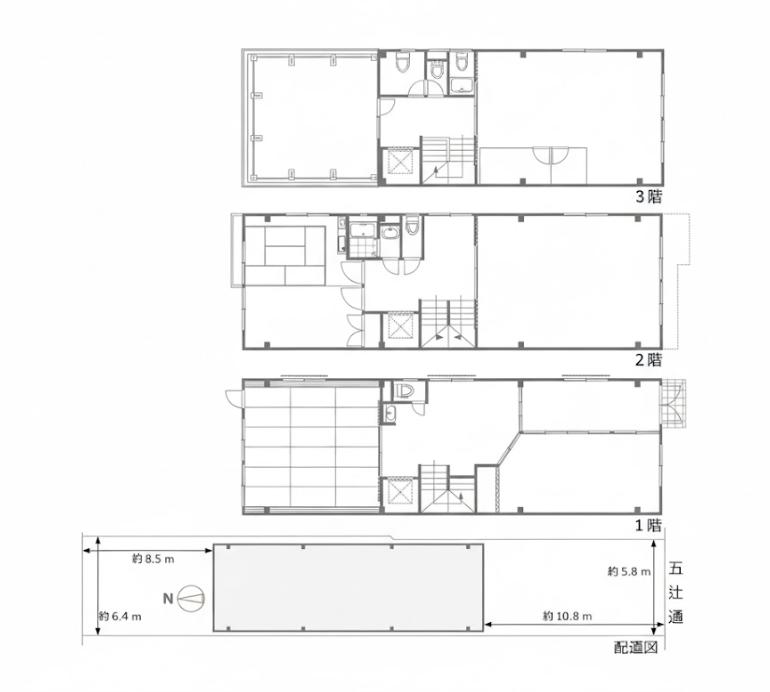
間取り

五辻通沿い・一棟貸し3フロアの事業用物件

賃料: 49.5万円 専有面積:254.24㎡

物件名:岸田ビル

所在地:京都府京都市上京区五辻通大宮西入五辻町

物件概要

五辻通に面した一棟貸しの事業用物件です。1階から3階までの3フロア構成で、延床面積は約254.24m2。各階ごとに使い分けがしやすく、事務所や店舗、複合的な拠点としての利用が検討できます。敷地内には駐車スペースがあり、車種によっては4台まで駐車可能です。 建物は2002年築の鉄骨造亜鉛メッキ鋼板葺3階建。1階・2階はそれぞれ約94.64m2、3階は約64.96m2となっており、合計で約77.11坪のボリュームがあります。用途地域は準工業地域(西陣特別工業地区)に指定されており、業種についても幅広く検討可能な立地条件です。 現況は空家で、引き渡しは費用清算後に即可能とされています。契約期間は3年の普通借家契約で、更新時には更新料が必要となります。保証金の返還条件や、改装工事・設備の扱いについては事前確認が必要なため、計画段階で整理しておくと安心です。 五辻通沿いという分かりやすい立地と、まとまった面積を確保できる一棟貸しの特性を活かし、事業規模や運営スタイルに合わせた使い方を検討できる物件です。

物件番号 18368
物件名 岸田ビル
所在地 京都府京都市上京区五辻通大宮西入五辻町
最寄駅/徒歩何分 京都市営地下鉄烏丸線 今出川駅まで 徒歩17分
所在階 1階
賃料 49.5万円
保証金 150万円
専有面積 254.24㎡
建物構造 鉄骨造階
取引態様 仲介
最終更新日 2026/01/19 13:46

同じエリアの物件

この物件を見た人はこちらの物件も見ています

最近チェックした物件

  • 壬生仙念町テナント
  • 上立売姥ケ西町京町家
  • ロベルトクエルチビル(1F)