1. HOME
  2. 物件詳細

京阪七条駅徒歩2分 本町通沿いの2階テナント

賃料: 7.8万円 専有面積:32.26㎡

物件名:京阪七条テナント

所在地:京都府京都市東山区本町新6丁目

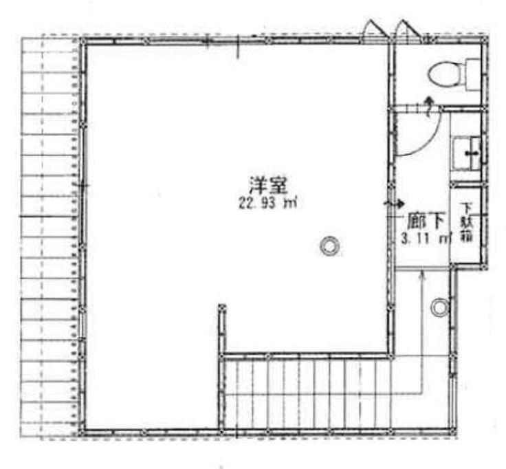
間取り

京阪七条駅徒歩2分 本町通沿いの2階テナント

賃料: 7.8万円 専有面積:32.26㎡

物件名:京阪七条テナント

所在地:京都府京都市東山区本町新6丁目

物件概要

京阪本線「七条」駅から徒歩2分。 本町通に面した立地にある、2階部分のテナント区画です。 専有面積は約32.26m2。 室内はシンプルなワンルーム形状で、事務所利用をはじめ、学習塾やエステなどの業態に対応しやすい間取りです。 トイレは室内にあり、エアコンも設置されています。 建物は木造2階建ての2階部分。 前面道路に面しているため、場所の説明もしやすく、来客のある用途でも検討しやすい環境です。 駐車場は1台分確保されており(別途費用)、車利用を想定した事業にも対応できます。 業種については事前相談となりますので、 具体的な使い方を想定しながら現地での確認がおすすめです。

物件番号 18245
物件名 京阪七条テナント
所在地 京都府京都市東山区本町新6丁目
最寄駅/徒歩何分 京阪本線 七条駅まで 徒歩2分
所在階 2階
賃料 7.8万円
敷金・礼金 敷金 5万円・礼金 5万円
専有面積 32.26㎡
建物構造 木造階
取引態様 仲介
最終更新日 2025/12/26 15:20

同じエリアの物件

この物件を見た人はこちらの物件も見ています

最近チェックした物件

  • KATASUMA STEPs(1F)
  • 東山 4丁目路地奥店舗