- HOME
- 物件詳細
物件詳細
軽飲食相談可。清水五条スケルトン【現在、家主様の方で内装費ご負担のご相談に乗っていただけます】
賃料: 34.43万円 専有面積:86.24㎡
物件名:ルミエール亰都(B1F-A)
所在地:京都市東⼭区本町4丁⽬
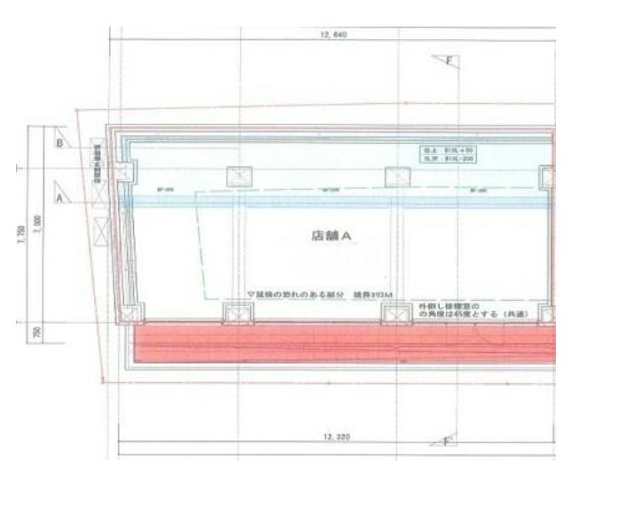
間取り
軽飲食相談可。清水五条スケルトン【現在、家主様の方で内装費ご負担のご相談に乗っていただけます】
賃料: 34.43万円 専有面積:86.24㎡
物件名:ルミエール亰都(B1F-A)
所在地:京都市東⼭区本町4丁⽬
物件概要
京阪「清水五条」駅から徒歩5分に位置するスケルトンタイプの地下1階テナントです。専有面積は86.24m2、2024年竣工のRC造ビル内で、南向きの角部屋という条件がそろっています。半地下ですが、通路から光は感じられます。 駐輪場や駐車場(1台空きあり)も利用可能で、アクセス面だけでなく利便性にも優れています。 10年の定期借家契約となり、長期的な利用を見据えた店舗づくりに適した物件です。清水五条や七条、祇園四条といった主要エリアからも徒歩圏内で、周辺環境とあわせて集客力が期待できます。スケルトン渡しのため、業態やデザインに合わせた自由なレイアウトが可能です。住居兼用も可能です。 現在、家主様の方で、内装費ご負担のご相談に乗っていただけます。 分割などもお問い合わせください。
| 物件番号 | 17105 |
|---|---|
| 物件名 | ルミエール亰都(B1F-A) |
| 所在地 | 京都市東⼭区本町4丁⽬ |
| 最寄駅/徒歩何分 | 京阪本線 清水五条駅まで 徒歩5分 |
| 賃料 | 34.43万円 |
| 保証金 | 3ヶ月 |
| 専有面積 | 86.24㎡ |
| 建物構造 | RC(鉄筋コンクリート)階 |
| 取引態様 | 仲介 |
| 最終更新日 | 2025/10/24 16:33 |