1. HOME
  2. 物件詳細

祇園四条エリア・角地ビル地下1階の貸店舗

賃料: 22万円 専有面積:66.40㎡

物件名:げんすけビル(B1F)

所在地:京都府京都市東山区祇園町北側

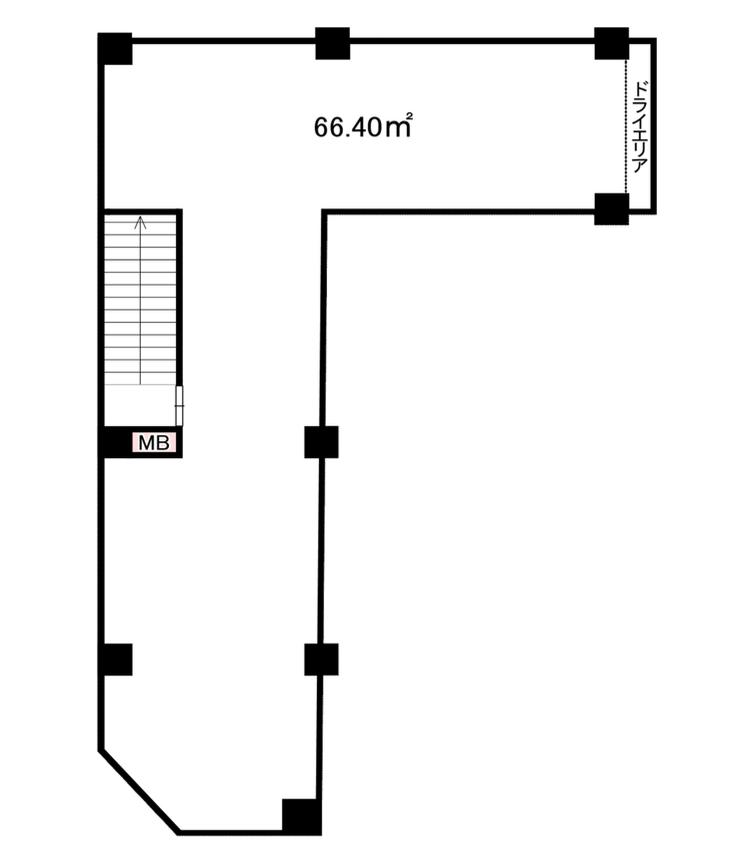
間取り

祇園四条エリア・角地ビル地下1階の貸店舗

賃料: 22万円 専有面積:66.40㎡

物件名:げんすけビル(B1F)

所在地:京都府京都市東山区祇園町北側

物件概要

京阪本線「祇園四条」駅から徒歩約4分。 河原町通にもアクセスしやすい立地に建つ、角地ビルの地下1階テナントです。 専有面積は約66.40m2(内法約57.01m2)。 ワンフロア仕様で、専用階段が設けられているため来店導線が明確なのも特徴のひとつ。 地下区画ながら、レイアウトや使い方を具体的に思い描きやすい区画です。 現況は空室で、引渡しは即時対応可能。 これまでBar用途として使用されていた居抜き区画のため、同業態はもちろん、夜営業を想定した店舗計画とも相性のよい内容となっています。 業種については相談可能です。 賃料は月額200,000円。 保証金60万円、解約時には解約引き30万円が設定されています。 契約期間は2年で、保証会社および火災保険への加入が必要です。 祇園四条というエリア性を活かしながら、 落ち着いた雰囲気でじっくりとお店を育てていきたい方に、ぜひ一度ご検討いただきたい物件です。

物件番号 18176
物件名 げんすけビル(B1F)
所在地 京都府京都市東山区祇園町北側
最寄駅/徒歩何分 京阪本線 祇園四条駅まで 徒歩4分
賃料 22万円
敷金・礼金 敷金 30万円・礼金 30万円
専有面積 66.40㎡
建物構造 SRC(鉄骨鉄筋コンクリート)階
取引態様 仲介
最終更新日 2025/12/19 09:51

同じエリアの物件

この物件を見た人はこちらの物件も見ています

最近チェックした物件

  • ビル・ミヤザキ3F
  • アクティ祇園富永町ビル(2.3F)
  • ビル・ミヤザキ