1. HOME
  2. 物件詳細

丸太町エリアの貸店舗|堀川通沿いスケルトン物件

賃料: 16.06万円 専有面積:58.40㎡

物件名:堀川出⽔団地第1棟 (113号室)

所在地:京都府京都市上京区⻄堀川通出⽔上る桝屋町

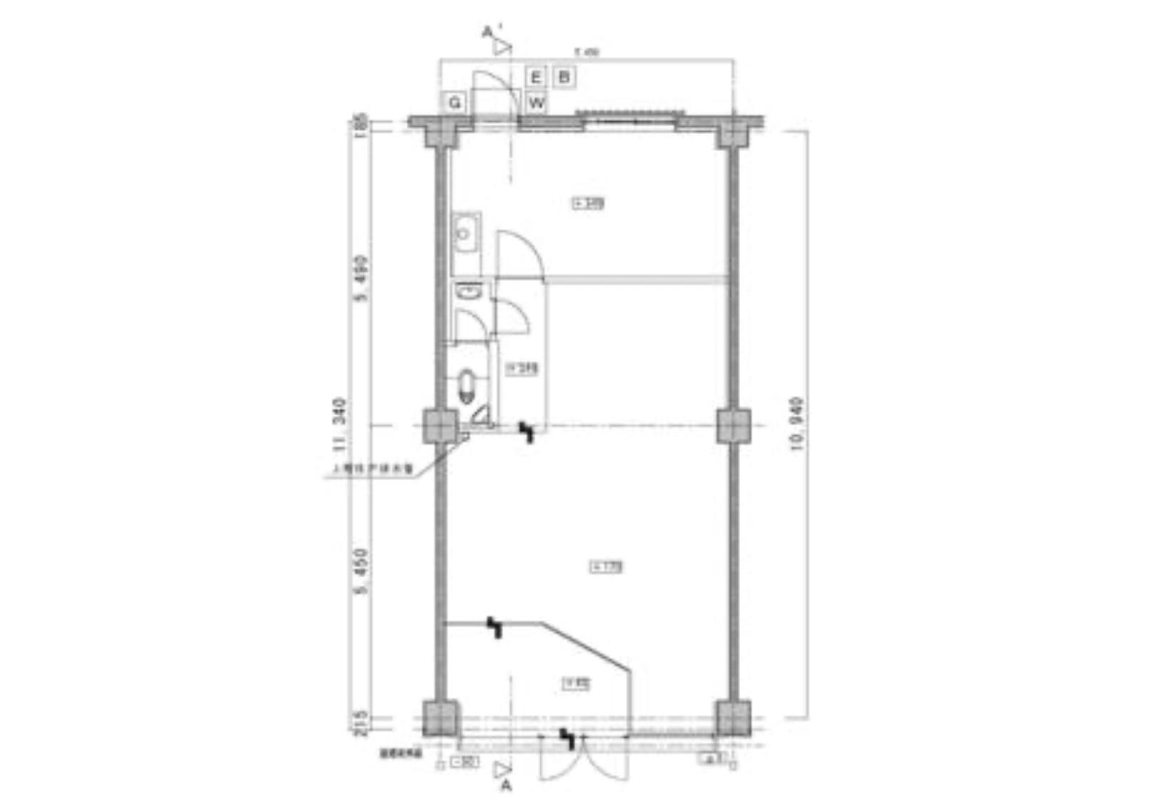
間取り

丸太町エリアの貸店舗|堀川通沿いスケルトン物件

賃料: 16.06万円 専有面積:58.40㎡

物件名:堀川出⽔団地第1棟 (113号室)

所在地:京都府京都市上京区⻄堀川通出⽔上る桝屋町

物件概要

京都市上京区西堀川通出水上ル柿屋町にある貸店舗です。地下鉄烏丸線「丸太町」駅から徒歩16分、バス停「堀川下立売」から徒歩3分の立地。専有面積は約17坪(58.40m2)で、堀川通に面した視認性の高いスケルトン物件です。天井高は2.5m以上あり、開放感のある空間構成となっています。飲食店での利用も可能で、自由なレイアウトでの内装工事ができます。構造はRC造3階建ての1階部分で、前面道路は交通量のある都道府県道に面しています。店舗やカフェ、ショールームなど、通行人の目に留まる立地を活かした業態にも適しています。京都で店舗デザインやリノベーションを検討されている方は、ぜひ当社にご相談ください。

物件番号 17681
物件名 堀川出⽔団地第1棟 (113号室)
所在地 京都府京都市上京区⻄堀川通出⽔上る桝屋町
最寄駅/徒歩何分 京都市営地下鉄烏丸線 丸太町駅まで 徒歩16分
所在階 1階
賃料 16.06万円
敷金・礼金 敷金 3ヶ月
専有面積 58.40㎡
建物構造 RC(鉄筋コンクリート)階
取引態様 仲介
最終更新日 2025/10/30 12:29

同じエリアの物件

この物件を見た人はこちらの物件も見ています

最近チェックした物件

  • 田村備前町店舗
  • K`S HOUSE 1F
  • ニューシャープマンション(1F)