- HOME
- 物件詳細
物件詳細
烏丸御池・御所南エリア「アスヴェル京都御所前II」1階テナント — 前面駐車場付き・業種相談可
賃料: 39.45万円 専有面積:86.95㎡
物件名:アスヴェル京都御所前II(1F)
所在地:京都府京都市中京区夷川通柳馬場東入俵屋町
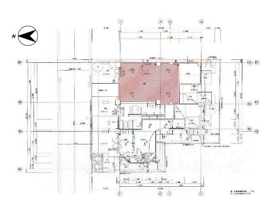
間取り
烏丸御池・御所南エリア「アスヴェル京都御所前II」1階テナント — 前面駐車場付き・業種相談可
賃料: 39.45万円 専有面積:86.95㎡
物件名:アスヴェル京都御所前II(1F)
所在地:京都府京都市中京区夷川通柳馬場東入俵屋町
物件概要
地下鉄烏丸線「烏丸御池」駅、東西線「京都市役所前」駅の2路線利用が可能な便利な立地。御所南エリアの落ち着いた街並みに佇む「アスヴェル京都御所前II」1階のテナントです。 専有面積は約86.95m2(約26.3坪)。前面に駐車スペースがあり、来客型の事務所やクリニック、サロンなどにも適しています。室内にはエアコン・トイレ・キッチンを完備し、店舗内装も整っています。 賃料は39.45万円(共益費39,450円)、保証金は3ヶ月。契約は15年の定期借家契約で、保証金返還率は3年未満60%、6年未満70%、9年未満80%、9年以上で90%となります。 飲食店は不可ですが、美容・医療・物販・来店型オフィスなど業種はご相談可能。御所南の穏やかな環境と視認性のある立地で、上質な店舗展開をお考えの方におすすめの物件です。
| 物件番号 | 17463 |
|---|---|
| 物件名 | アスヴェル京都御所前II(1F) |
| 所在地 | 京都府京都市中京区夷川通柳馬場東入俵屋町 |
| 最寄駅/徒歩何分 | 京都市営地下鉄烏丸線 烏丸御池駅まで |
| 所在階 | 1階 |
| 賃料 | 39.45万円 |
| 保証金 | 3ヶ月 |
| 専有面積 | 86.95㎡ |
| 建物構造 | RC(鉄筋コンクリート)階 |
| 取引態様 | 仲介 |
| 最終更新日 | 2025/10/09 07:37 |