1. HOME
  2. 物件詳細

丸太町徒歩3分・約16坪居抜き区画

賃料: 33万円 専有面積:53.05㎡

物件名:THE WAISE御所(1F)

所在地:京都府京都市中京区夷川通柳馬場西入百足屋町

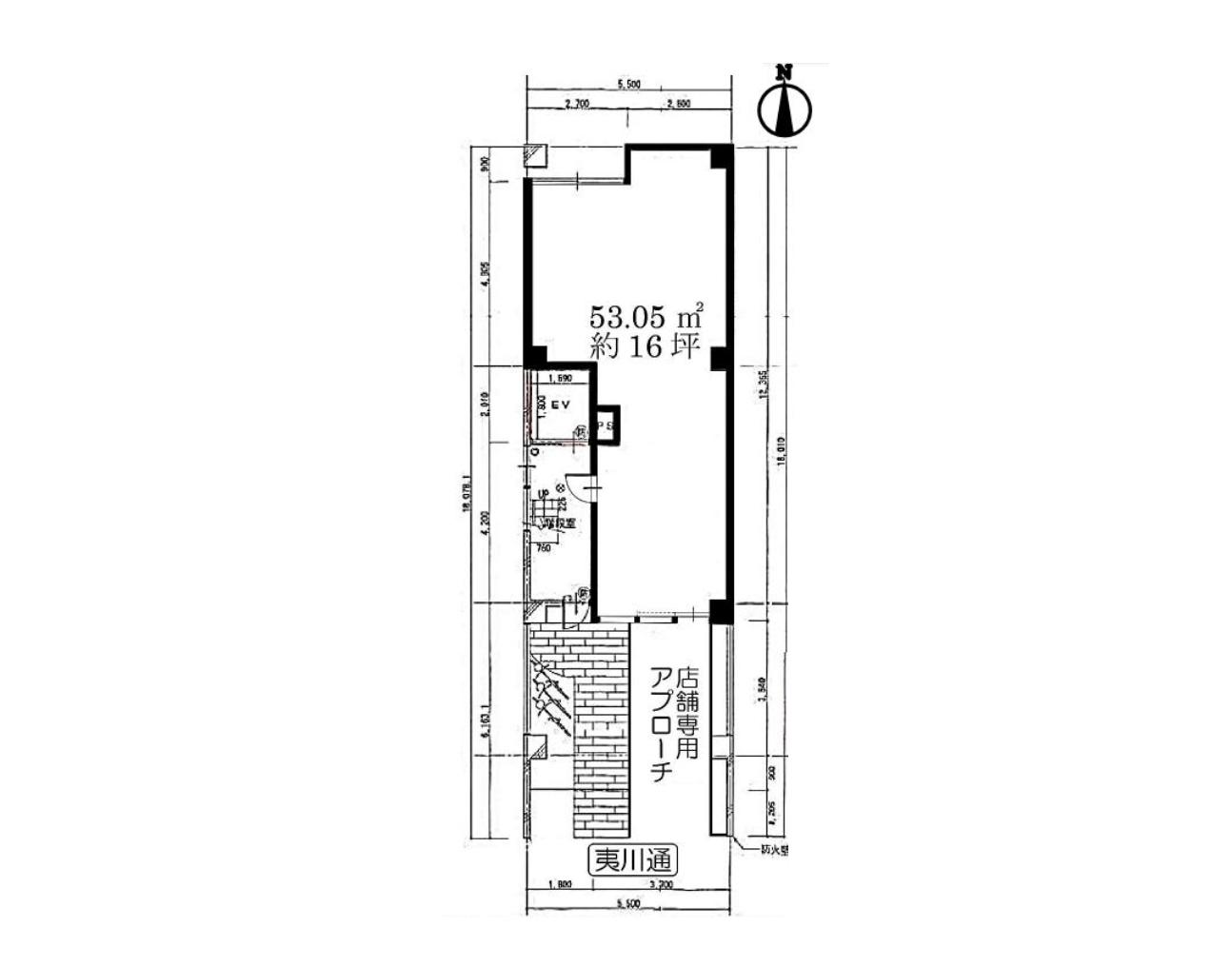
間取り

丸太町徒歩3分・約16坪居抜き区画

賃料: 33万円 専有面積:53.05㎡

物件名:THE WAISE御所(1F)

所在地:京都府京都市中京区夷川通柳馬場西入百足屋町

物件概要

京都市中京区夷川通柳馬場西入百足屋町。地下鉄烏丸線「丸太町」駅より徒歩約3分、「烏丸御池」駅へも徒歩約10分。夷川通に面する1階店舗です。専有面積は約53.05m2(約16坪)。前創作料理店の居抜き区画で、カウンターや内装を活かした出店をご検討いただけます。 賃料330,000円(税込)。敷金90万円、礼金33万円(税込)。共益費は賃料に含まれています。鉄筋コンクリート・鉄骨造6階建の1階部分、2006年11月築。商業地域(職住共存特別用途地区)内。現況空室、即入居可能です。 専用アプローチ付きで、視認性のある路面区画。飲食店は応相談(強い臭気・煙を伴う業態は不可)。丸太町エリアで約16坪前後の1階居抜きをお探しの方に。

物件番号 18633
物件名 THE WAISE御所(1F)
所在地 京都府京都市中京区夷川通柳馬場西入百足屋町
最寄駅/徒歩何分 京都市営地下鉄烏丸線 丸太町駅まで 徒歩3分
所在階 1階
賃料 33万円
敷金・礼金 敷金 90万円・礼金 33万円
専有面積 53.05㎡
建物構造 RC(鉄筋コンクリート)階
取引態様 仲介
最終更新日 2026/02/18 14:47

同じエリアの物件

この物件を見た人はこちらの物件も見ています

最近チェックした物件

  • 桃山南ショッピングセンター
  • 陵南ハイツ