1. HOME
  2. 物件詳細

太秦KCSビル2号室(帷子ノ辻駅)|店舗デザインにこだわりたい方へおすすめのスケルトン物件

賃料: 14.3万円 専有面積:66.20㎡

物件名:KCSビル(1F)

所在地:京都府京都市右京区太秦御所ノ内町

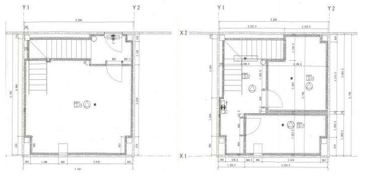
間取り

太秦KCSビル2号室(帷子ノ辻駅)|店舗デザインにこだわりたい方へおすすめのスケルトン物件

賃料: 14.3万円 専有面積:66.20㎡

物件名:KCSビル(1F)

所在地:京都府京都市右京区太秦御所ノ内町

物件概要

京福電鉄帷子ノ辻駅から徒歩5分の立地にある、約66m2のスケルトン区画です。自由度の高いレイアウトが可能で、こだわりの店舗デザインを検討中の方にも適しています。2002年に全面改修された4階建の建物で、オートロックやエレベーターも完備。飲食店以外の事務所やサービス店舗など、ご利用用途はご相談ください。

物件番号 16172
物件名 KCSビル(1F)
所在地 京都府京都市右京区太秦御所ノ内町
最寄駅/徒歩何分 京福電鉄嵐山本線 帷子ノ辻駅まで 徒歩5分
所在階 1階
賃料 14.3万円
敷金・礼金 敷金 78万円
専有面積 66.20㎡
建物構造 鉄骨造階
取引態様 仲介
最終更新日 2025/05/15 11:39

同じエリアの物件

この物件を見た人はこちらの物件も見ています

最近チェックした物件

  • 東山区フードデリバリーキッチン(1階)