1. HOME
  2. 物件詳細

東山安井すぐの4・5階一括区画

賃料: 23万円 専有面積:49.82㎡

物件名:安井金毘羅宮横ビル(4.5F)

所在地:京都府京都市東山区東大路松原上る下弁天町

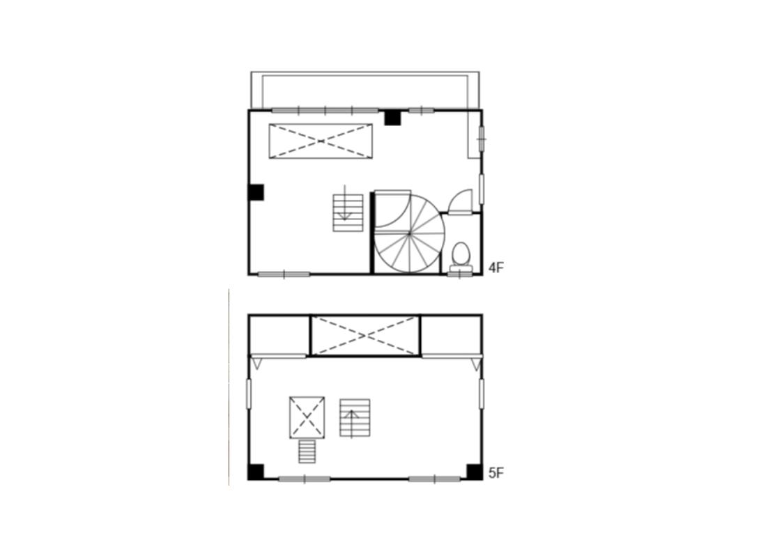
間取り

東山安井すぐの4・5階一括区画

賃料: 23万円 専有面積:49.82㎡

物件名:安井金毘羅宮横ビル(4.5F)

所在地:京都府京都市東山区東大路松原上る下弁天町

物件概要

東山区広道通松原上るエリア、安井金比羅宮近くに位置する4・5階の一括貸区画です。市バス「東山安井」停から徒歩1分、清水や祇園方面への動線上にある立地。鉄骨造5階建の上層階で、専有面積は合計約49.82m2(約15坪)。賃料は23万円で、立地と規模を踏まえて検討しやすい条件です。上下階を一体で使える構成のため、用途に応じて空間を分けて使い方を考えやすい点も特徴。周辺は観光客の往来も見込まれるエリアで、サービス店舗や事務所など、立地を活かした展開をイメージしやすい区画です。

物件番号 19125
物件名 安井金毘羅宮横ビル(4.5F)
所在地 京都府京都市東山区東大路松原上る下弁天町
最寄駅/徒歩何分 バス (東山安井バス停まで徒歩1分)
所在階 4階
賃料 23万円
敷金・礼金 礼金 2ヶ月
専有面積 49.82㎡
建物構造 鉄骨造階
取引態様 仲介
最終更新日 2026/04/09 12:03

同じエリアの物件

この物件を見た人はこちらの物件も見ています