1. HOME
  2. 物件詳細

元田中駅徒歩5分の1階路面店舗

賃料: 26.61万円 専有面積:97.44㎡

物件名:伊佐ビル

所在地:京都府京都市左京区田中西大久保町

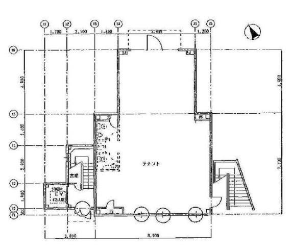
間取り

元田中駅徒歩5分の1階路面店舗

賃料: 26.61万円 専有面積:97.44㎡

物件名:伊佐ビル

所在地:京都府京都市左京区田中西大久保町

物件概要

叡山電鉄元田中駅から徒歩5分、東大路通に面した角地の1階店舗です。鉄骨造3階建の1階部分で、専有面積は約97.44m2(約29.52坪)。賃料は約25.1万円で、広さとのバランスを踏まえて検討しやすい条件です。現況はスケルトン予定となっており、用途に応じた空間づくりを計画しやすい区画。前テナントはクリニックとして使用されていた経緯もあり、視認性のある立地を活かした使い方が考えやすい環境です。通りに面した角地の特性を活かしながら、店舗やサービス業など幅広い用途で検討しやすい物件です。

物件番号 19055
物件名 伊佐ビル
所在地 京都府京都市左京区田中西大久保町
最寄駅/徒歩何分 叡山電鉄 茶山・京都芸術大学駅まで 徒歩6分
所在階 1階
賃料 26.61万円
保証金 6ヶ月
専有面積 97.44㎡
建物構造 鉄骨造階
取引態様 仲介
最終更新日 2026/04/02 11:26

同じエリアの物件

この物件を見た人はこちらの物件も見ています