1. HOME
  2. 物件詳細

祇園四条徒歩5分の4階貸店舗

賃料: 28.6万円 専有面積:71.78㎡

物件名:祇園八百伊ビル(4F)

所在地:京都府京都市東山区新橋通大和大路東入2丁目橋本町

NEW

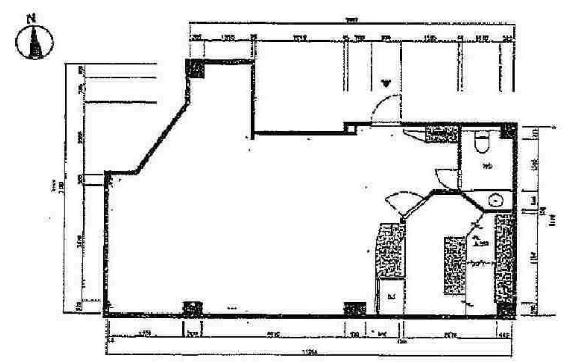
間取り

NEW

祇園四条徒歩5分の4階貸店舗

賃料: 28.6万円 専有面積:71.78㎡

物件名:祇園八百伊ビル(4F)

所在地:京都府京都市東山区新橋通大和大路東入2丁目橋本町

物件概要

京都市東山区新橋通大和大路東入2丁目橋本町に位置する京都 テナント・貸店舗。京阪本線「祇園四条」駅から徒歩5分の場所にある建物4階区画です。面積は71.78m2で、坪換算では約21.71坪。鉄骨造地上6階建の建物で、募集区画は4階部分となります。賃料は28.6万円、共益費22,000円、水道基本料6,600円(税込)。礼金1か月、契約期間は2年で更新料は1か月とされています。現況は空家で、引渡しは即時可能です。エレベーターの設置があり、1フロア1区画の構成です。約21坪の広さがあり、サービス店舗や事務所利用などは使い方を検討しやすい規模です。用途に応じてレイアウトを整理しながら、京都 店舗デザインや店舗設計、店舗リノベーションを取り入れて空間構成を検討していく余地がある貸店舗です。

物件番号 18960
物件名 祇園八百伊ビル(4F)
所在地 京都府京都市東山区新橋通大和大路東入2丁目橋本町
最寄駅/徒歩何分 京阪本線 祇園四条駅まで 徒歩5分
所在階 4階
賃料 28.6万円
管理費 22000円
敷金・礼金 礼金 1ヶ月
専有面積 71.78㎡
建物構造 鉄骨造階
取引態様 仲介
最終更新日 2026/03/24 12:28

同じエリアの物件

この物件を見た人はこちらの物件も見ています