1. HOME
  2. 物件詳細

二ノ宮通に面する京町家店舗|旧五条楽園エリア

賃料: 39.6万円 専有面積:97.05㎡

物件名:早尾町京町家

所在地:京都府京都市下京区六軒通木屋町東入早尾町

NEW

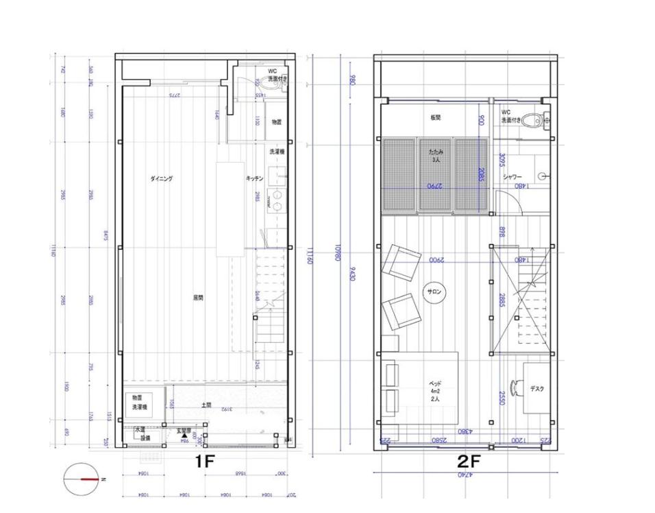
間取り

NEW

二ノ宮通に面する京町家店舗|旧五条楽園エリア

賃料: 39.6万円 専有面積:97.05㎡

物件名:早尾町京町家

所在地:京都府京都市下京区六軒通木屋町東入早尾町

物件概要

旧五条楽園エリア、二ノ宮通に面する京町家店舗のご紹介です。京都らしい街並みが残る落ち着いた環境にあり、周辺にはゲストハウスや小規模な飲食店が点在するエリア。観光客の滞在も多く、町家の雰囲気を活かした店舗づくりを検討されている方に魅力のある立地です。 建物は木造瓦葺2階建の京町家。延床面積は約97.05m2(約29.36坪)で、1階約52.36m2、2階約44.69m2の構成となっています。賃料は月額396,000円(税込)、保証金は108万円、契約期間は3年。火災保険および保証会社への加入が必要です。 室内は2025年にリノベーション済みで、町家の雰囲気を残しながら現代的に整えられた空間。飲食店やカフェ、サロン、事務所など幅広い用途での利用が検討可能です。観光エリアに近いことから、京都らしい体験型の店舗や、宿泊関連ビジネスとの相性も良い立地です。 京阪本線「清水五条」駅から徒歩17分。京都の歴史的な街並みに溶け込む店舗をお探しの方は、ぜひご検討ください。

物件番号 18838
物件名 早尾町京町家
所在地 京都府京都市下京区六軒通木屋町東入早尾町
最寄駅/徒歩何分 京阪本線 清水五条駅まで 徒歩17分
所在階 1階
賃料 39.6万円
保証金 108万円
専有面積 97.05㎡
建物構造 木造階
取引態様 仲介
最終更新日 2026/04/15 15:17

同じエリアの物件

この物件を見た人はこちらの物件も見ています