1. HOME
  2. 物件詳細

四条駅徒歩圏内・約34m2のコンパクトオフィス

賃料: 11万円 専有面積:34.18㎡

物件名:堀之内町ビル(102)

所在地:京都府京都市下京区堀之内町

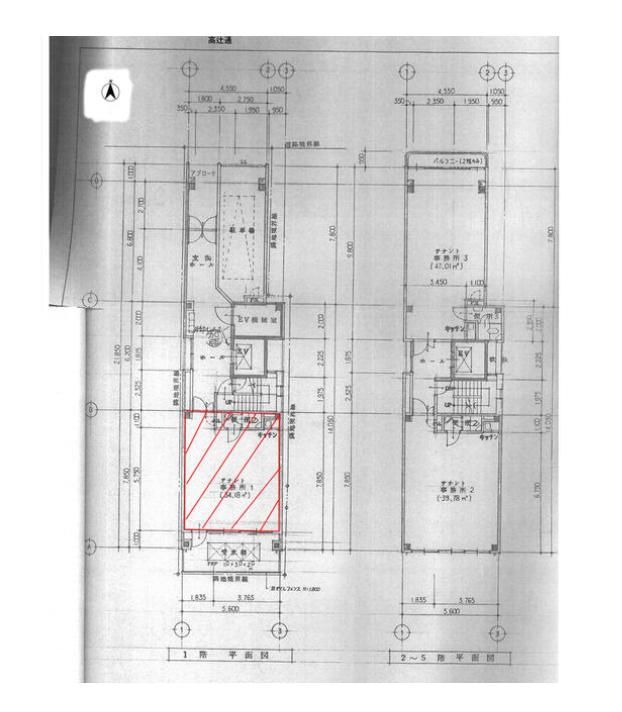
間取り

四条駅徒歩圏内・約34m2のコンパクトオフィス

賃料: 11万円 専有面積:34.18㎡

物件名:堀之内町ビル(102)

所在地:京都府京都市下京区堀之内町

物件概要

地下鉄烏丸線「四条」駅より徒歩8分。 京都市下京区高辻通新町西入堀之内町に位置する、約34.18m2(約10.3坪)の貸事務所です。 1990年8月築・鉄骨造5階建の1階部分。エアコン・エレベーター完備で、24時間利用可能。土曜日の利用も可能なため、柔軟な働き方に対応できます。 賃料は11万円。礼金・敷金なし、保証金20万円。共益費は月額11,000円。 引渡しは2026年4月下旬予定です。 四条エリアの落ち着いた通り沿いで、コンパクトながらも独立性のある区画。 スタートアップや少人数の事務所、士業オフィスなどに適したサイズ感です。 詳細条件や内覧については、お気軽にご相談ください。

物件番号 18690
物件名 堀之内町ビル(102)
所在地 京都府京都市下京区堀之内町
最寄駅/徒歩何分 京都市烏丸線四条まで 徒歩7分
所在階 1階
賃料 11万円
共益費 1 万円
保証金 20万円
敷金・礼金 敷金 なし・礼金 なし
専有面積 34.18㎡
建物構造 鉄骨造階
取引態様 仲介
最終更新日 2026/02/25 15:25

同じエリアの物件

この物件を見た人はこちらの物件も見ています