1. HOME
  2. 物件詳細

三条駅徒歩6分・約85m2区画

賃料: 40.7万円 専有面積:85.40㎡

物件名:京都ロイヤルビル(9F)

所在地:京都府京都市中京区南車屋町

NEW

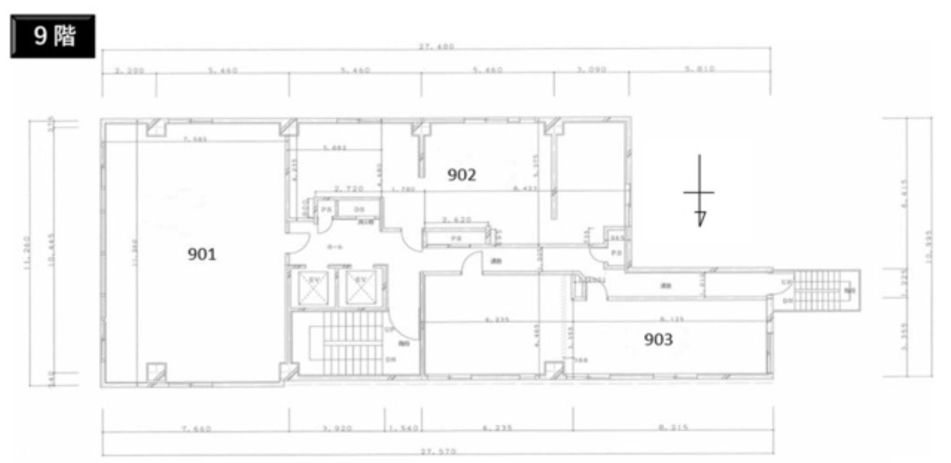
間取り

NEW

三条駅徒歩6分・約85m2区画

賃料: 40.7万円 専有面積:85.40㎡

物件名:京都ロイヤルビル(9F)

所在地:京都府京都市中京区南車屋町

物件概要

京都市中京区南車屋町に位置する「京都ロイヤルビル」9階部分の募集です。京阪本線「三条」駅より徒歩約6分。市内中心部へのアクセスも良好な立地です。 専有面積は85.40m2。SRC造12階建(地下1階付)の9階区画です。1972年11月築。現況はスケルトンで、用途や内装計画に応じたレイアウトが可能です。 賃料は月額40.70万円。礼金なし、敷金なし、保証金111.00万円。契約期間は2年。主要採光面は東向き。飲食店相談可、24時間利用可(土日・祝日利用可)となっています。 三条エリアで中規模区画をお探しの方にご検討いただきたい物件です。 詳細条件や内覧についてはお気軽にご相談ください。

物件番号 18668
物件名 京都ロイヤルビル(9F)
所在地 京都府京都市中京区南車屋町
最寄駅/徒歩何分 阪急京都線 京都河原町駅まで 徒歩6分
所在階 9階
賃料 40.7万円
管理費 40700円
保証金 111万円
専有面積 85.40㎡
建物構造 SRC(鉄骨鉄筋コンクリート)階
取引態様 仲介
最終更新日 2026/02/22 07:20

同じエリアの物件

この物件を見た人はこちらの物件も見ています