1. HOME
  2. 物件詳細

三条通面す1階路面区画

賃料: 50.4万円 専有面積:50.47㎡

物件名:ライオンズマンション京都三条(1F)

所在地:京都府京都市中京区三条通柳馬場西入桝屋町

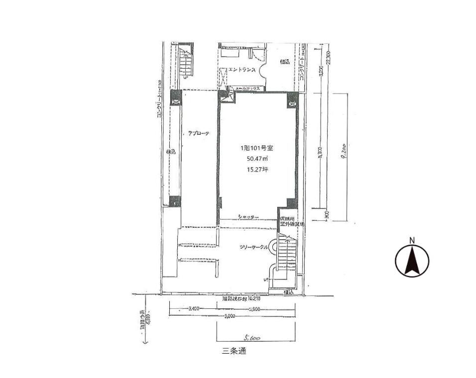
間取り

三条通面す1階路面区画

賃料: 50.4万円 専有面積:50.47㎡

物件名:ライオンズマンション京都三条(1F)

所在地:京都府京都市中京区三条通柳馬場西入桝屋町

物件概要

地下鉄「京都市役所前」駅徒歩6分、三条通に面する「ライオンズマンション京都三条」1階101号室の募集です。 専有面積50.47m2(約15.27坪)。RC造8階建の1階部分で、通りに面した視認性のある区画。物販店向きの路面店舗です。 賃料503,910円(税込)、管理費39,710円、保証金3,000,000円。定期借家契約10年。保証会社加入要(フォーシーズ)、分譲マンションのため管理組合の承認が必要です。保証金償却100万円。現テナントはインテリア雑貨店で、2026年5月末退去予定。 三条通沿いという立地柄、周辺には物販・カフェ・オフィスが混在し、観光客と地元利用の双方が見込めるエリアです。業種や詳細条件については事前にご相談ください。 立地重視で路面店舗をお探しの方におすすめの一室です。詳しくはお気軽にお問い合わせください。

物件番号 18643
物件名 ライオンズマンション京都三条(1F)
所在地 京都府京都市中京区三条通柳馬場西入桝屋町
最寄駅/徒歩何分 京都市営地下鉄東西線 京都市役所前駅まで 徒歩6分
所在階 1階
賃料 50.4万円
管理費 39710円
保証金 300万円
専有面積 50.47㎡
建物構造 RC(鉄筋コンクリート)階
取引態様 仲介
最終更新日 2026/02/19 10:39

同じエリアの物件

この物件を見た人はこちらの物件も見ています