- HOME
- 物件詳細
物件詳細
丸屋町テナントビル 2・3階 ― 烏丸御池徒歩5分、落ち着いたエリアの事務所向きテナント
賃料: 66万円 専有面積:0.00㎡
物件名:丸屋町テナントビル
所在地:京都府京都市中京区高倉通三条下る丸屋町
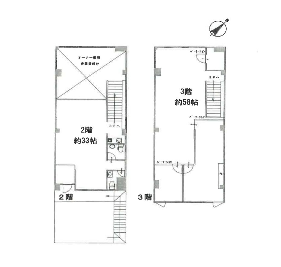
間取り
丸屋町テナントビル 2・3階 ― 烏丸御池徒歩5分、落ち着いたエリアの事務所向きテナント
賃料: 66万円 専有面積:0.00㎡
物件名:丸屋町テナントビル
所在地:京都府京都市中京区高倉通三条下る丸屋町
物件概要
地下鉄「烏丸御池」駅から徒歩5分。京都市中京区高倉通三条下る、京都文化博物館のほど近くに建つ「丸屋町テナントビル」2・3階部分のご紹介です。周辺には雑貨店やカフェ、エステサロンなどが並び、上品で落ち着いた雰囲気が漂うエリアです。 建物は鉄骨造3階建(1992年築)。今回募集の2・3階部分は、事務所や士業のオフィス利用に適した空間で、弁護士・司法書士・不動産関連などの業種にもおすすめ。設備は電気・動力電源・上下水道・エアコンを完備しています。 定期借家契約10年、保証金180万円(3年未満30%・10年で100%返還)。賃料は66万円(税込)、更新料は1か月分です。駐車場はございませんが、アクセス・環境ともにバランスの良い立地です。 京都の中心で、静かな環境と利便性を兼ね備えたオフィス拠点をお探しの方におすすめの物件です。
| 物件番号 | 17485 |
|---|---|
| 物件名 | 丸屋町テナントビル |
| 所在地 | 京都府京都市中京区高倉通三条下る丸屋町 |
| 最寄駅/徒歩何分 | 京都市営地下鉄烏丸線 烏丸御池駅まで 徒歩5分 |
| 所在階 | 2階 |
| 賃料 | 66万円 |
| 保証金 | 180万円 |
| 専有面積 | 0.00㎡ |
| 建物構造 | 鉄骨造階 |
| 取引態様 | 仲介 |
| 最終更新日 | 2025/10/11 09:22 |