1. HOME
  2. 物件詳細

北山エリア・約49坪の一棟テナント

賃料: 30万円 専有面積:161.71㎡

物件名:紫竹西北町ビル(一棟)

所在地:京都府京都市北区紫竹西北町

NEW

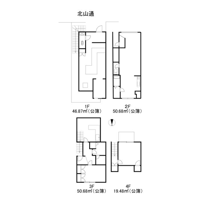
間取り

NEW

北山エリア・約49坪の一棟テナント

賃料: 30万円 専有面積:161.71㎡

物件名:紫竹西北町ビル(一棟)

所在地:京都府京都市北区紫竹西北町

物件概要

京都市北区紫竹西北町に位置する、一棟貸しの事業用物件です。建物は鉄骨造4階建で、募集区画は1階から4階までの一棟利用。建物使用部分面積は161.71m2、坪数にすると約48.91坪となり、フロアごとに用途を分けた使い方も検討しやすい構成です。賃料は月額30.0万円で、敷金は3ヶ月分。引渡し時期は相談とされており、計画に合わせたスケジュール調整が前提となります。1階は飲食居抜き、2階は事務所仕様、3階・4階は2LDKの構成とされており、業種や運営スタイルに応じた活用を考えやすい点が特徴です。市街化区域内にあり、北山通に面する立地のため、視認性や動線を踏まえた事業計画が求められます。京都でテナントや貸店舗を探す中で、拠点集約や複合的な使い方を検討している場合、条件整理を行いながら現実的に検討しやすい一棟物件といえます。

物件番号 18583
物件名 紫竹西北町ビル(一棟)
所在地 京都府京都市北区紫竹西北町
最寄駅/徒歩何分 京都市営地下鉄烏丸線 北大路駅まで 徒歩19分
所在階 1階
賃料 30万円
敷金・礼金 敷金 3ヶ月
専有面積 161.71㎡
建物構造 鉄骨造階
取引態様 仲介
最終更新日 2026/02/10 16:28

同じエリアの物件

この物件を見た人はこちらの物件も見ています

最近チェックした物件

  • 三条大映フロントビル(1F)
  • アイビープレイス嵐山(1-C)
  • 嵯峨新宮町住宅付店舗戸建
  • 太秦ビル(一棟貸し)
  • 嵯峨新宮町テナント(1F)
  • 嵯峨天龍寺北造路町店舗
  • 上立売姥ケ西町京町家
  • 花車町戸建
  • 嵯峨野秋街道町店舗
  • ニュウコウポ岩谷(1F-中側)
  • 北区大宮西総門口町テナント