1. HOME
  2. 物件詳細

室町通に面する、角地の一棟貸し店舗

賃料: 19.8万円 専有面積:100.44㎡

物件名:坂東屋町店舗戸建

所在地:京都府京都市下京区室町通五条上る坂東屋町

NEW

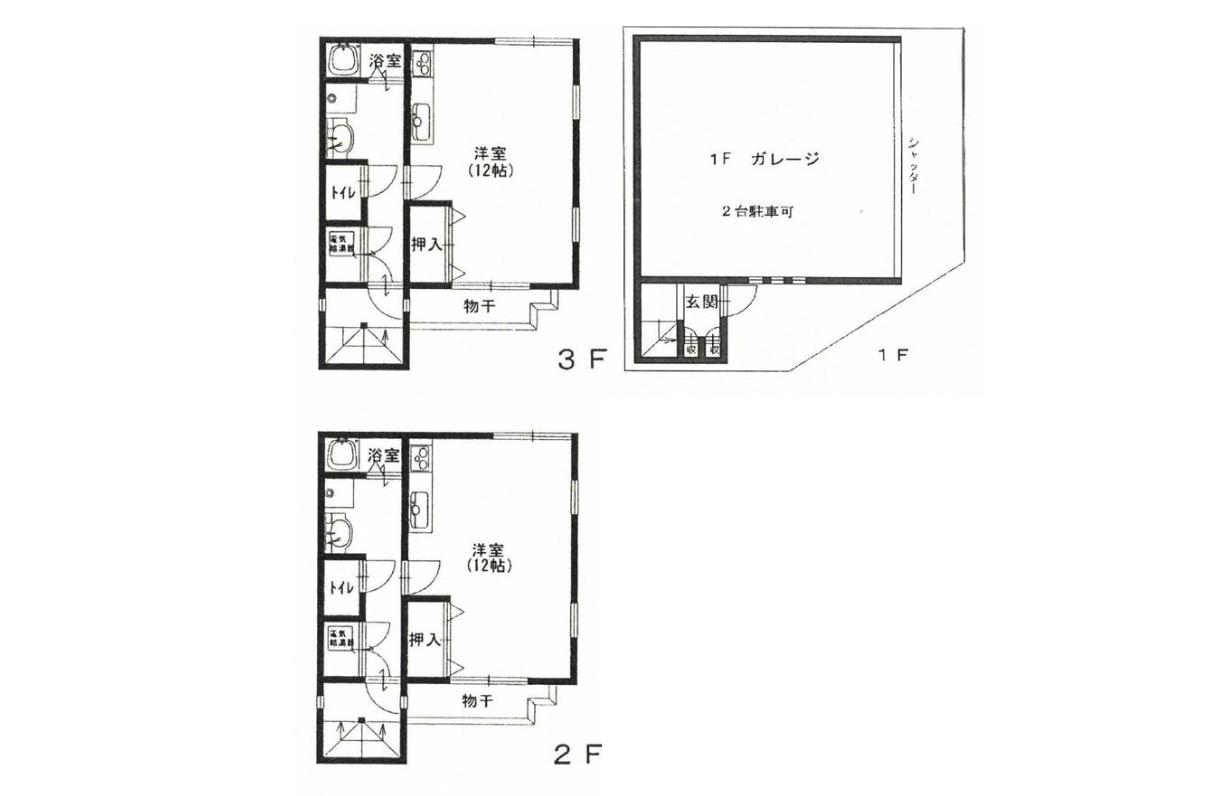
間取り

NEW

室町通に面する、角地の一棟貸し店舗

賃料: 19.8万円 専有面積:100.44㎡

物件名:坂東屋町店舗戸建

所在地:京都府京都市下京区室町通五条上る坂東屋町

物件概要

地下鉄五条駅から徒歩3分、室町通に面した角地に建つ一戸建ての店舗物件です。建物は木造3階建、延床約100m2としっかりとしたボリュームがあり、視認性の高さも立地の魅力のひとつです。 1階はガレージ仕様で2台分の駐車が可能。来客対応や作業動線を意識した使い方ができ、2・3階は居室として整えられているため、事務所や作業場、教室などへの転用も検討しやすい構成です。 現況は空室で、業種についても幅広く相談可能。角地ならではの開放感と、通り沿いの立地を活かした拠点をお探しの方に、現実的な選択肢となりそうな一棟です。

物件番号 18278
物件名 坂東屋町店舗戸建
所在地 京都府京都市下京区室町通五条上る坂東屋町
最寄駅/徒歩何分 京都市営地下鉄烏丸線 五条駅まで 徒歩3分
所在階 1階
賃料 19.8万円
敷金・礼金 敷金 2ヶ月・礼金 2ヶ月
専有面積 100.44㎡
建物構造 木造階
取引態様 仲介
最終更新日 2026/01/08 14:22

同じエリアの物件

この物件を見た人はこちらの物件も見ています