1. HOME
  2. 物件詳細

三条通に面する、新築1階テナント。東山駅徒歩2分の立地

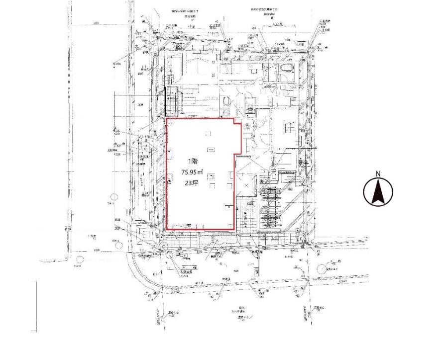
賃料: 49.5万円 専有面積:75.95㎡

物件名:シャーメゾン三条東山(1F)

所在地:京都府京都市東山区七軒町

間取り

三条通に面する、新築1階テナント。東山駅徒歩2分の立地

賃料: 49.5万円 専有面積:75.95㎡

物件名:シャーメゾン三条東山(1F)

所在地:京都府京都市東山区七軒町

物件概要

三条通に面した立地に、2026年8月末完成予定の新築テナントです。 地下鉄東山駅から徒歩2分、三条京阪駅からも徒歩4分と、アクセス面でも魅力のあるエリアに位置しています。 募集区画は1階部分、約75.95m2(約23坪)。 視認性のあるロードサイド立地のため、物販店舗を中心に、軽飲食などの業種についてもご相談可能です。 新築ならではの清潔感と、レイアウトの自由度を活かした空間づくりができる点も特徴です。 なお、本物件は定期借家契約(10年)となります。 契約形態の特性上、入居にあたっては事業計画との相性や将来的な運営イメージを踏まえ、慎重にご検討いただくことをおすすめします。 立地・条件ともに魅力のある物件ですので、詳細についてはぜひ一度ご相談ください。

物件番号 18169
物件名 シャーメゾン三条東山(1F)
所在地 京都府京都市東山区七軒町
最寄駅/徒歩何分 京都市営地下鉄東西線 東山駅まで 徒歩2分
所在階 1階
賃料 49.5万円
保証金 6ヶ月
専有面積 75.95㎡
建物構造 鉄骨造階
取引態様 仲介
最終更新日 2025/12/18 09:31

同じエリアの物件

この物件を見た人はこちらの物件も見ています