パスワードを忘れた方はこちら
物件詳細
検索ページに戻る
物件No.17998
賃料: 16.5万円 専有面積:42.24㎡
物件名:メゾン林(1F)
所在地:京都府京都市右京区嵯峨天龍寺瀬戸川町
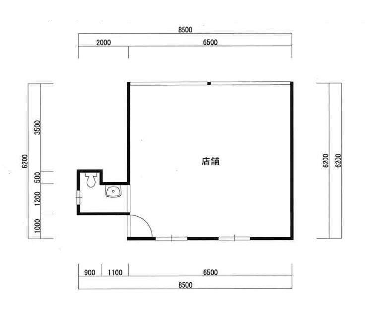
物件No.18435
賃料: 9.9万円 面積:40.81㎡
物件名:嵯峨天龍寺北造路町店舗
所在地:京都府京都市右京区嵯峨天龍寺北造路町
物件No.16563
賃料: 22万円 面積:63.94㎡
物件名:セイコービル(2F)
所在地:京都府京都市右京区嵯峨天龍寺車道町
物件No.18358
賃料: 15万円 面積:136.48㎡
物件名:嵯峨新宮町住宅付店舗戸建
所在地:京都府京都市右京区嵯峨新宮町
物件No.18446
賃料: 16.61万円 面積:50.00㎡
物件名:嵯峨新宮町テナント(1F)
物件No.15164
賃料: 14.3万円 面積:112.25㎡
物件名:ミヤックスビル(3F)
物件No.16921
賃料: 200万円 面積:98.10㎡
物件名:山縣邸
所在地:京都府京都市右京区嵯峨天龍寺芒ノ馬場町
物件No.16410
賃料: 29.7万円 面積:67.62㎡
物件名:小稲荷町店舗戸建
所在地:京都府京都市下京区小稲荷町
物件No.16961
賃料: 11万円 面積:25.95㎡
物件名:祇園末吉町ビル(3F)
所在地:京都府京都市東山区大和大路通四条上る末吉町