1. HOME
  2. 物件詳細

北野天満宮徒歩3分|フィットネスジム居抜きの一棟貸店舗

賃料: 33万円 専有面積:160.00㎡

物件名:東堅町テナント

所在地:京都府京都市上京区東竪町

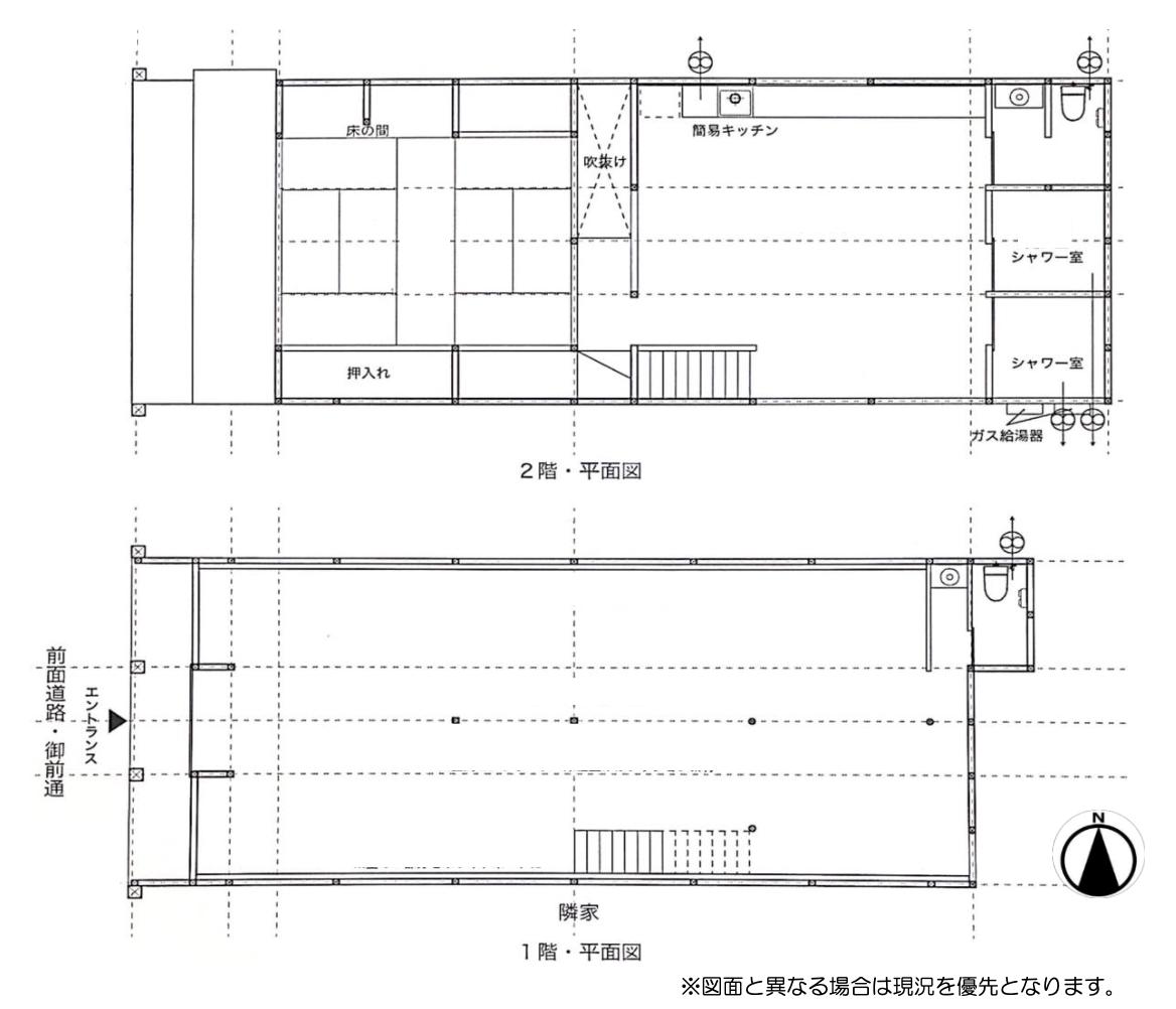
間取り

北野天満宮徒歩3分|フィットネスジム居抜きの一棟貸店舗

賃料: 33万円 専有面積:160.00㎡

物件名:東堅町テナント

所在地:京都府京都市上京区東竪町

物件概要

北野天満宮から徒歩3分の好立地にある、一棟貸しの店舗物件です。 現在はフィットネスジムとして使用されており、シャワールームやトイレ、ミニキッチンなどの設備が残置されています。 延床約160m2の木造2階建てで、1階は広々としたメインスペース、2階は和室やシャワー室を備えた構成。 業種については相談可能で、ジムやスタジオのほか、スクールや事務所など幅広い用途に対応できます。 北野白梅町駅からも徒歩10分とアクセスしやすく、周辺には住宅と店舗が混在する落ち着いた環境が広がります。 地域密着型の事業や、多目的に活用できる拠点をお探しの方におすすめの物件です。

物件番号 17804
物件名 東堅町テナント
所在地 京都府京都市上京区東竪町
最寄駅/徒歩何分 京福電鉄北野線 北野白梅町駅まで 徒歩10分
所在階 1階
賃料 33万円
保証金 3ヶ月
敷金・礼金 礼金 1ヶ月
専有面積 160.00㎡
建物構造 木造階
取引態様 仲介
最終更新日 2025/11/11 10:23

同じエリアの物件

この物件を見た人はこちらの物件も見ています