- HOME
- 物件詳細
物件詳細
五条烏丸徒歩3分|ワンフロア約81m2の事務所区画(ビー・エムビル3階)
賃料: 22万円 専有面積:81.74㎡
物件名:ビー・エムビル(3F)
所在地:京都府京都市下京区万寿寺通烏丸西入御供石町
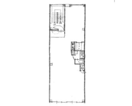
間取り
NEW
五条烏丸徒歩3分|ワンフロア約81m2の事務所区画(ビー・エムビル3階)
賃料: 22万円 専有面積:81.74㎡
物件名:ビー・エムビル(3F)
所在地:京都府京都市下京区万寿寺通烏丸西入御供石町
物件概要
地下鉄「五条駅」から徒歩3分、阪急「烏丸駅」や京阪「清水五条駅」からもアクセス可能。 京都中心部の主要動線に近い便利な立地にある「ビー・エムビル」3階の事務所区画です。 専有面積は約81.74m2(約24.72坪)。 スッキリとした長方形のレイアウトで、執務スペースのほか会議室などの区分けもしやすい間取りです。 オフィスのほか、スクールやサロンなど軽用途の事業利用もご相談可能。 建物は鉄筋コンクリート造、地下1階・地上4階建。 共用トイレを備え、24時間の出入りにも対応しています。 北向きで採光も安定し、落ち着いた環境で業務を行えます。 賃料は月額22万円(税込)で、共益費・水道代を含めた利用が可能。 保証金は賃料の3ヶ月分、契約期間は2年の普通賃貸借契約です。 駐車場も敷地内にあり(別契約・月27,500円税込)。 五条通と烏丸通の交差点にほど近く、 京都駅方面・四条方面のどちらにも動きやすいポジション。 利便性とコストバランスを重視するオフィス拠点としておすすめです。
| 物件番号 | 17653 |
|---|---|
| 物件名 | ビー・エムビル(3F) |
| 所在地 | 京都府京都市下京区万寿寺通烏丸西入御供石町 |
| 最寄駅/徒歩何分 | 京都市営地下鉄烏丸線 五条駅まで 徒歩3分 |
| 所在階 | 3階 |
| 賃料 | 22万円 |
| 保証金 | 3ヶ月 |
| 専有面積 | 81.74㎡ |
| 建物構造 | RC(鉄筋コンクリート)階 |
| 取引態様 | 仲介 |
| 最終更新日 | 2025/10/28 13:36 |