1. HOME
  2. 物件詳細

祇園エリアの角部屋事務所|少人数向けの落ち着いた空間

賃料: 11万円 専有面積:25.95㎡

物件名:祇園末吉町ビル(3F)

所在地:京都府京都市東山区大和大路通四条上る末吉町

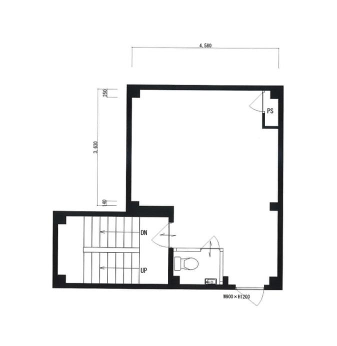
間取り

祇園エリアの角部屋事務所|少人数向けの落ち着いた空間

賃料: 11万円 専有面積:25.95㎡

物件名:祇園末吉町ビル(3F)

所在地:京都府京都市東山区大和大路通四条上る末吉町

物件概要

祇園四条駅から徒歩5分、四条通から少し上がった大和大路通沿いにある事務所物件のご紹介です。建物の3階、角部屋に位置し、面積は約25.95m2。専有部分にはトイレとエアコンが備わっており、日中の出入りが少ない業種、たとえば更衣室やバックオフィス的な利用に適しています。定期借家契約で、契約期間は2026年4月末まで。阪急河原町駅や地下鉄三条京阪駅からもアクセス可能な立地で、祇園エリアで静かに事業を進めたい方におすすめです。

物件番号 16961
物件名 祇園末吉町ビル(3F)
所在地 京都府京都市東山区大和大路通四条上る末吉町
最寄駅/徒歩何分 京阪本線 祇園四条駅まで 徒歩5分
所在階 3階
賃料 11万円
敷金・礼金 敷金 1ヶ月・礼金 2ヶ月
専有面積 25.95㎡
建物構造 SRC(鉄骨鉄筋コンクリート)階
取引態様 仲介
最終更新日 2025/08/02 14:30

同じエリアの物件

この物件を見た人はこちらの物件も見ています