1. HOME
  2. 物件詳細

北山通面す角地の1階テナント(レイ北山 1階北A)

賃料: 22万円 専有面積:66.11㎡

物件名:レイ北山(1F-北A)

所在地:京都府京都市左京区下鴨南芝町

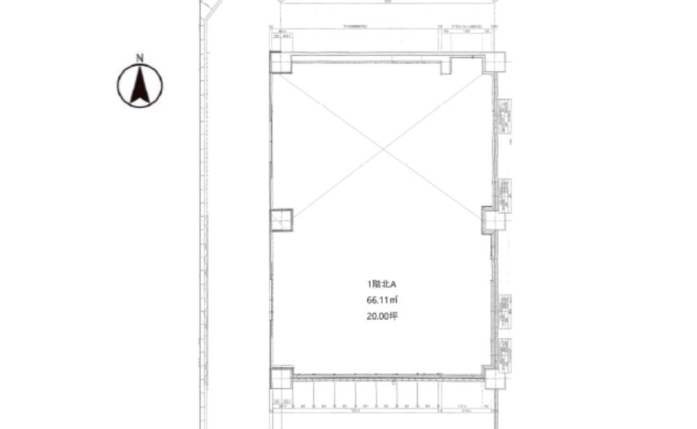
間取り

北山通面す角地の1階テナント(レイ北山 1階北A)

賃料: 22万円 専有面積:66.11㎡

物件名:レイ北山(1F-北A)

所在地:京都府京都市左京区下鴨南芝町

物件概要

地下鉄烏丸線「北山」駅から徒歩1分。北山通に面した視認性の高い角地に位置する「レイ北山」1階北A区画の貸店舗です。 専有面積は約66.11m2(約20坪)で、スケルトン渡し。店舗やサービス業、物販など、幅広い用途に対応可能です。保証金は200万円で、返還率は5年未満70%、5年以上90%。契約期間は5年で、更新料は賃料の0.5ヶ月分となります。 1994年築のRC造3階建で、北山エリアらしい落ち着いた街並みに調和する外観。京都コンサートホール至近のため、周辺には飲食店やカフェ、美容室などが並び、集客の見込める立地です。 北山エリアで店舗をお探しの方におすすめの物件です。

物件番号 17449
物件名 レイ北山(1F-北A)
所在地 京都府京都市左京区下鴨南芝町
最寄駅/徒歩何分 京都市営地下鉄烏丸線 北山駅まで 徒歩1分
所在階 1階
賃料 22万円
保証金 200万円
専有面積 66.11㎡
建物構造 RC(鉄筋コンクリート)階
取引態様 仲介
最終更新日 2025/10/08 10:56

同じエリアの物件

この物件を見た人はこちらの物件も見ています