1. HOME
  2. 物件詳細

縄手通面す・新橋エリアの一棟貸テナント

賃料: 110万円 専有面積:144.42㎡

物件名:弁財天町店舗戸建

所在地:京都府京都市東山区大和大路通三条下る3丁目弁財天町

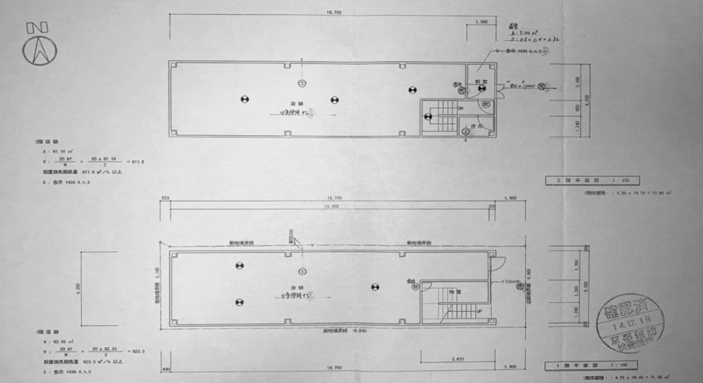
間取り

縄手通面す・新橋エリアの一棟貸テナント

賃料: 110万円 専有面積:144.42㎡

物件名:弁財天町店舗戸建

所在地:京都府京都市東山区大和大路通三条下る3丁目弁財天町

物件概要

京阪「祇園四条」駅から徒歩約4分、縄手通に面した一棟貸物件のご案内です。延床面積は約144.42m2(約43.69坪)、鉄骨造2階建の店舗で、定期建物賃貸借(20年)での募集となります。 1階部分は約71.56m2(約21.65坪)、2階部分は約72.86m2(約22.04坪)で、分割貸にも対応可能。間口約4.89mと視認性が高く、観光地・祇園エリアならではの人通りを活かした店舗づくりが可能です。 商業地域に位置し、各種規制のあるエリアですが、その立地とスケール感を活かして、飲食店舗や物販店など、多様な事業に適したポジションです。2025年10月以降のお引渡し予定となります。

物件番号 17208
物件名 弁財天町店舗戸建
所在地 京都府京都市東山区大和大路通三条下る3丁目弁財天町
最寄駅/徒歩何分 京阪本線 祇園四条駅まで 徒歩4分
所在階 1階
賃料 110万円
保証金 3ヶ月
敷金・礼金 礼金 1.5ヶ月
専有面積 144.42㎡
建物構造 鉄骨造階
取引態様 仲介
最終更新日 2025/09/10 18:08

同じエリアの物件

この物件を見た人はこちらの物件も見ています