1. HOME
  2. 物件詳細

伏見稲荷駅徒歩1分の区画貸店舗

賃料: 47.3万円 専有面積:28.51㎡

物件名:伏見稲荷OICYビレッジ(A)

所在地:京都府京都市伏見区深草一ノ坪町

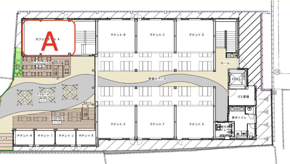
間取り

伏見稲荷駅徒歩1分の区画貸店舗

賃料: 47.3万円 専有面積:28.51㎡

物件名:伏見稲荷OICYビレッジ(A)

所在地:京都府京都市伏見区深草一ノ坪町

物件概要

京都市伏見区深草一ノ坪町に位置する京都 テナント・貸店舗。京阪本線「伏見稲荷」駅から徒歩1分の場所にある商業施設内1階区画です。面積は28.51m2で、坪換算では約8.62坪。鉄骨造の建物で、募集区画はa区画となります。賃料は47.3万円、共益費165,000円、敷金6か月、礼金50万円。契約は定期借家契約で期間7年とされています。築年月は2023年2月。現況は賃貸中で、引渡しは4月中旬予定です。施設内の一画として飲食用途の相談が可能とされており、共用トイレの利用となります。約8坪の広さで、物販や軽飲食などは業態との相性を考えやすいサイズです。施設全体の動線を踏まえながら、京都 店舗デザインや店舗設計、店舗リノベーションを組み合わせて空間を整える計画も検討の余地がある貸店舗です。

物件番号 18919
物件名 伏見稲荷OICYビレッジ(A)
所在地 京都府京都市伏見区深草一ノ坪町
最寄駅/徒歩何分 京阪本線 伏見稲荷駅まで 徒歩1分
所在階 1階
賃料 47.3万円
敷金・礼金 敷金 6ヶ月・礼金 50万円
専有面積 28.51㎡
建物構造 鉄骨造階
取引態様 仲介
最終更新日 2026/03/19 20:45

同じエリアの物件

この物件を見た人はこちらの物件も見ています