1. HOME
  2. 物件詳細

今出川通沿いの路面店舗|今出川駅徒歩9分

賃料: 18.7万円 専有面積:50.63㎡

物件名:フォルム堀川今出川(1F)

所在地:京都府京都市上京区今出川通堀川東入飛鳥井町

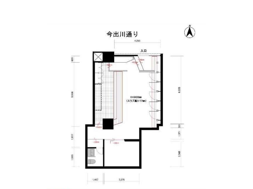
間取り

今出川通沿いの路面店舗|今出川駅徒歩9分

賃料: 18.7万円 専有面積:50.63㎡

物件名:フォルム堀川今出川(1F)

所在地:京都府京都市上京区今出川通堀川東入飛鳥井町

物件概要

地下鉄烏丸線「今出川」駅から徒歩9分、今出川通に面した1階路面店舗のご紹介です。京都市上京区今出川通堀川東入の立地で、周辺には住宅や店舗が混在する落ち着いた街並みが広がっています。 専有面積は約50.63m2(約15.32坪)。1階区画のため、通りに面した視認性のある立地で、来店型の店舗や事務所としての利用も検討しやすい区画です。現在は空室となっており、現況渡しでの引渡しとなります。 今出川通沿いという分かりやすい立地に加え、周辺には日常利用の店舗や施設も点在しており、地域に根ざした店舗運営やサービス拠点としても検討しやすい環境です。 今出川エリアで路面店舗をお探しの方は、ぜひご検討ください。

物件番号 18767
物件名 フォルム堀川今出川(1F)
所在地 京都府京都市上京区今出川通堀川東入飛鳥井町
最寄駅/徒歩何分 京都市営地下鉄烏丸線 今出川駅まで 徒歩9分
所在階 1階
賃料 18.7万円
敷金・礼金 敷金 51万円
専有面積 50.63㎡
建物構造 SRC(鉄骨鉄筋コンクリート)階
取引態様 仲介
最終更新日 2026/03/06 18:41

同じエリアの物件

この物件を見た人はこちらの物件も見ています