1. HOME
  2. 物件詳細

出町柳駅徒歩圏、1階路面の店舗・事務所区画

賃料: 17.5万円 専有面積:35.80㎡

物件名:出町柳ビル(1F)

所在地:京都府京都市左京区田中下柳町

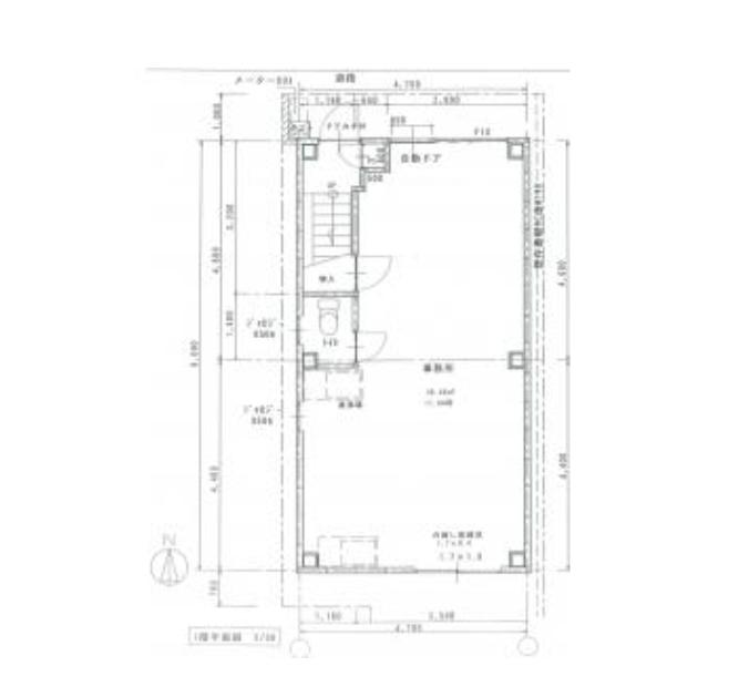
間取り

出町柳駅徒歩圏、1階路面の店舗・事務所区画

賃料: 17.5万円 専有面積:35.80㎡

物件名:出町柳ビル(1F)

所在地:京都府京都市左京区田中下柳町

物件概要

叡山電鉄の出町柳駅から徒歩圏内、京都市左京区田中下柳町に位置する1階路面の店舗・事務所区画です。専有面積は約35.80m2で、コンパクトながらも視認性を確保しやすい立地が特徴です。 専有部分内にトイレが設けられており、業務動線を比較的シンプルに組み立てやすい点もポイント。事務所利用をはじめ、来店型の業態についても検討しやすい条件がそろっています。 定期借家契約のため、契約期間や事業計画との相性を踏まえつつ、立地とサイズ感を活かした使い方を検討したい物件です。

物件番号 18276
物件名 出町柳ビル(1F)
所在地 京都府京都市左京区田中下柳町
最寄駅/徒歩何分 叡山電鉄 出町柳駅まで 徒歩1分
所在階 1階
賃料 17.5万円
保証金 6ヶ月
専有面積 35.80㎡
建物構造 その他階
取引態様 仲介
最終更新日 2026/01/07 13:10

同じエリアの物件

この物件を見た人はこちらの物件も見ています

最近チェックした物件

  • ノアーズアーク東寺
  • 横神明町京町家
  • 常盤窪町テナント(1F)
  • ティアラビル御池(1F)
  • リーファーストビル(A棟-B1F-西)
  • 京都府京都市右京区常盤窪町 店舗事務所
  • 澤井ビル(4-B)