1. HOME
  2. 物件詳細

小川通六角下ルの京町家店舗|庭付き・約33坪の貸店舗

賃料: 22万円 専有面積:111.81㎡

物件名:元本能寺町京町家

所在地:京都府京都市中京区元本能寺町

NEW

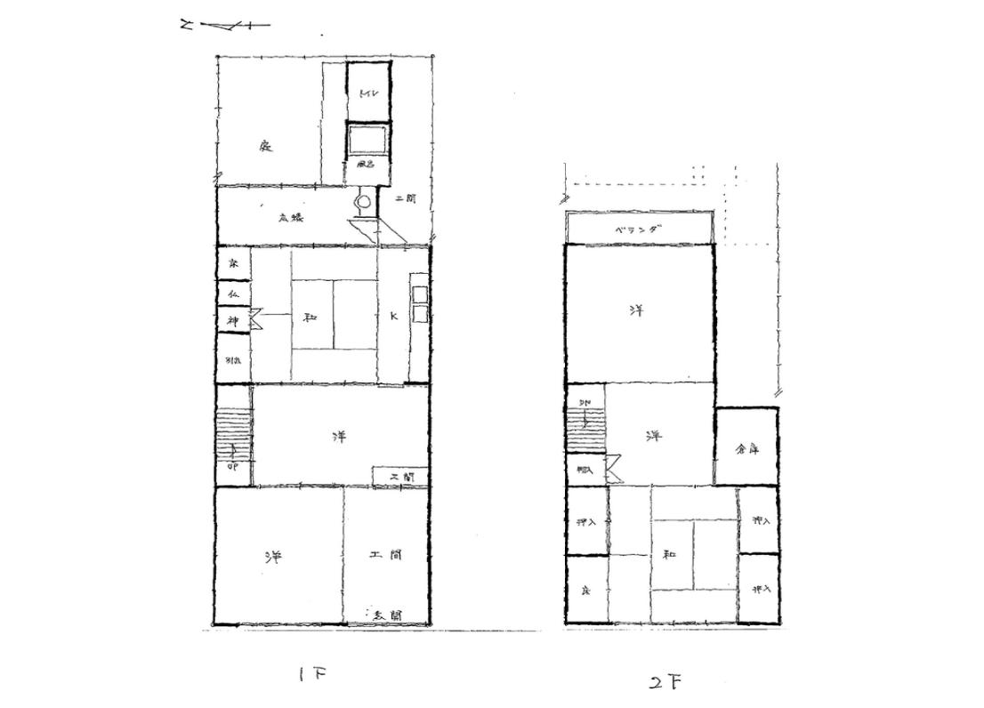
間取り

NEW

小川通六角下ルの京町家店舗|庭付き・約33坪の貸店舗

賃料: 22万円 専有面積:111.81㎡

物件名:元本能寺町京町家

所在地:京都府京都市中京区元本能寺町

物件概要

京都市中京区小川通六角下ル元本能寺町に位置する、庭付きの京町家貸店舗です。建物面積は約111.81m2(約33坪)で、木造2階建。昭和23年築の趣ある建物ながら、室内は丁寧に手入れされ、奥には坪庭も備えています。間取りは6Kで、和室・洋室がバランスよく配置され、飲食店やサロン、ギャラリーなど、さまざまな用途にご利用いただけます。前面道路は幅約5mの公道に接し、間口もしっかり確保。周辺は町家や店舗が立ち並ぶ落ち着いたエリアで、京都らしい雰囲気を大切にした店舗づくりに最適です。定期借家契約10年、保証会社加入が必要となります。京都中心部で京町家を活かした出店をお考えの方は、ぜひご相談ください。

物件番号 17685
物件名 元本能寺町京町家
所在地 京都府京都市中京区元本能寺町
最寄駅/徒歩何分
所在階 1階
賃料 22万円
保証金 150万円
専有面積 111.81㎡
建物構造 木造階
取引態様 仲介
最終更新日 2025/10/31 15:26

同じエリアの物件

この物件を見た人はこちらの物件も見ています