1. HOME
  2. 物件詳細

四条烏丸エリア|東洞院通沿いのオフィス(36.66m2)専用ミニキッチン・トイレ付き

賃料: 14.3万円 専有面積:36.66㎡

物件名:エステートビル四条烏丸(504)

所在地:京都府京都市中京区元竹田町

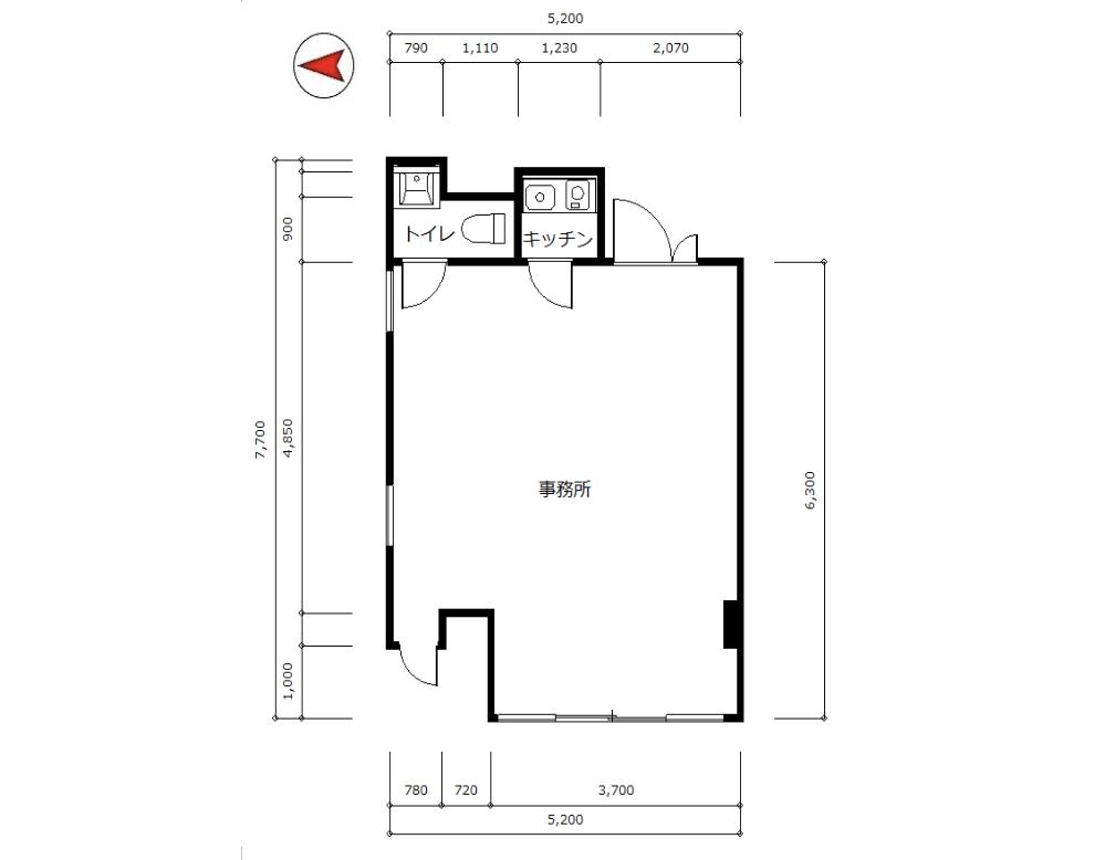
間取り

四条烏丸エリア|東洞院通沿いのオフィス(36.66m2)専用ミニキッチン・トイレ付き

賃料: 14.3万円 専有面積:36.66㎡

物件名:エステートビル四条烏丸(504)

所在地:京都府京都市中京区元竹田町

物件概要

京都市中京区元竹田町、東洞院通に面したオフィスビルの5階部分です。 地下鉄烏丸線「四条」駅・阪急京都線「烏丸」駅から徒歩4分と、2WAYアクセスが可能な好立地。 京都の中心地で、アクセスと利便性を兼ね備えた事務所をお探しの方におすすめです。 専有面積は約36.66m2。 室内にはIHミニキッチン、洗面台、ウォシュレット付きトイレ、エアコンを完備し、快適な執務空間が整っています。 建物はRC造5階建てで、エレベーターも設置されています。 賃料は月額143,000円(税込)+管理費18,770円。 敷金40万円、礼金28.6万円で、契約期間は3年。引き渡し時期はご相談となります。 落ち着いた環境と快適な設備が揃った、京都の中心地・四条烏丸エリアの事務所です。

物件番号 17635
物件名 エステートビル四条烏丸(504)
所在地 京都府京都市中京区元竹田町
最寄駅/徒歩何分 京都市営地下鉄烏丸線 四条駅まで 徒歩4分
所在階 5階
賃料 14.3万円
管理費 18770円
敷金・礼金 敷金 40万円・礼金 28.6万円
専有面積 36.66㎡
建物構造 RC(鉄筋コンクリート)階
取引態様 仲介
最終更新日 2025/10/25 12:10

同じエリアの物件

この物件を見た人はこちらの物件も見ています

最近チェックした物件

  • サンシステム祇園ソーシャルビル3F-D号室
  • 西京極堤外町テナント1F
  • YMビル(1F)