1. HOME
  2. 物件詳細

河原町蛸薬師通に面するワンフロアテナント

賃料: 66万円 専有面積:155.96㎡

物件名:YONEZAWA BLDG.河原町蛸薬師(4F)

所在地:京都府京都市中京区河原町通蛸薬師下る塩屋町

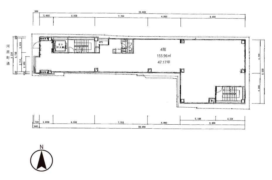
間取り

河原町蛸薬師通に面するワンフロアテナント

賃料: 66万円 専有面積:155.96㎡

物件名:YONEZAWA BLDG.河原町蛸薬師(4F)

所在地:京都府京都市中京区河原町通蛸薬師下る塩屋町

物件概要

阪急「京都河原町」駅から徒歩2分、河原町通に面した「YONEZAWA BLDG.河原町蛸薬師」4階部分の募集です。専有面積は155.96m2(約47.17坪)あり、ワンフロアを広く使えるため、オフィスや店舗としての活用が可能です。 2003年築の鉄骨造8階建てで、エレベーターを1基完備。賃料は66万円(税別)、保証金360万円、契約期間は3年で更新料は不要となっています。 人通りの多い河原町通に面しており、集客性の高い立地です。業種はご相談いただけますので、事務所利用をはじめ、物販やサービス店舗をお考えの方にも適した物件です。

物件番号 17400
物件名 YONEZAWA BLDG.河原町蛸薬師(4F)
所在地 京都府京都市中京区河原町通蛸薬師下る塩屋町
最寄駅/徒歩何分 阪急京都線 京都河原町駅まで 徒歩2分
所在階 4階
賃料 66万円
保証金 6ヶ月
専有面積 155.96㎡
建物構造 鉄骨造階
取引態様 仲介
最終更新日 2025/10/03 13:59

同じエリアの物件

この物件を見た人はこちらの物件も見ています

最近チェックした物件

  • ライフプラザ西大路四条(3020号)
  • 御池マスギアネックスビル(2F-西)