1. HOME
  2. 物件詳細

万寿寺通堅田町 一棟貸店舗(80m2)

賃料: 27.5万円 専有面積:80.65㎡

物件名:堅田町町家

所在地:京都市下京区万寿寺通柳馬場西入堅田町

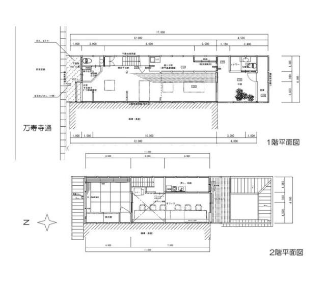
間取り

万寿寺通堅田町 一棟貸店舗(80m2)

賃料: 27.5万円 専有面積:80.65㎡

物件名:堅田町町家

所在地:京都市下京区万寿寺通柳馬場西入堅田町

物件概要

京都市営地下鉄「五条駅」徒歩9分、京阪「清水五条駅」や四条駅も徒歩圏内にある一棟貸しの店舗です。建物は木造2階建、専有面積は約80.65m2。現在は空室で、引渡し時期はご相談となります。 飲食店での利用も可能で、シャワールームやトイレ2ヶ所、室内洗濯機置場が設置されており、事務所やサービス業にも柔軟に対応できる間取りです。築年数は古く、屋根補修後に現状有姿でのお引渡しとなりますが、建物の味わいを活かした店舗づくりをお考えの方におすすめです。 契約は10年の定期借家契約となり、長期的な計画を立てる上で事前に再契約方針をご確認いただくことをお勧めします。大通りから少し入った立地で、落ち着いた雰囲気を持ちながらもアクセスの良い店舗物件です。

物件番号 17360
物件名 堅田町町家
所在地 京都市下京区万寿寺通柳馬場西入堅田町
最寄駅/徒歩何分 京都市営地下鉄烏丸線 五条駅まで 徒歩9分
所在階 1階
賃料 27.5万円
保証金 100万円
専有面積 80.65㎡
建物構造 木造階
取引態様 仲介
最終更新日 2025/09/25 11:41

同じエリアの物件

この物件を見た人はこちらの物件も見ています