1. HOME
  2. 物件詳細

九条駅徒歩4分・新築1階テナント

賃料: 10.34万円 専有面積:33.41㎡

物件名:PARK明田町(1F-2)

所在地:京都府京都市南区東九条明田町

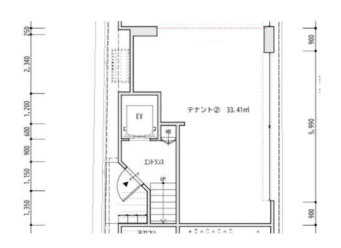
間取り

九条駅徒歩4分・新築1階テナント

賃料: 10.34万円 専有面積:33.41㎡

物件名:PARK明田町(1F-2)

所在地:京都府京都市南区東九条明田町

物件概要

地下鉄烏丸線「九条」駅から徒歩4分に位置する新築テナントのご案内です。専有面積は33.41m2、1階部分で、初めてのお店づくりにも取り入れやすいサイズ感となっています。 建物はオートロック・防犯カメラ・エレベーターを備えており、安心の環境が整っています。業種についてはご相談可能ですので、美容・物販・サービス業など幅広くご検討いただけます。 保証金制度には返還率が設けられており、長期利用にも対応可能。京都駅からも徒歩圏内にあり、利便性と安心感を兼ね備えた物件です。

物件番号 17165
物件名 PARK明田町(1F-2)
所在地 京都府京都市南区東九条明田町
最寄駅/徒歩何分 京都市営地下鉄烏丸線 九条駅まで 徒歩4分
所在階 1階
賃料 10.34万円
保証金 3ヶ月
専有面積 33.41㎡
建物構造 鉄骨造階
取引態様 仲介
最終更新日 2025/09/05 16:13

同じエリアの物件

この物件を見た人はこちらの物件も見ています

最近チェックした物件

  • 東九条南山王町テナント
  • まつ茂ビル(1F)
  • 屋形町平屋テナント