1. HOME
  2. 物件詳細

白川通り沿いの大型居抜き店舗|一乗寺エリアで駐車場共用21台付き

賃料: 44万円 専有面積:152.06㎡

物件名:一乗寺築田町テナント

所在地:京都府京都市左京区一乗寺築田町

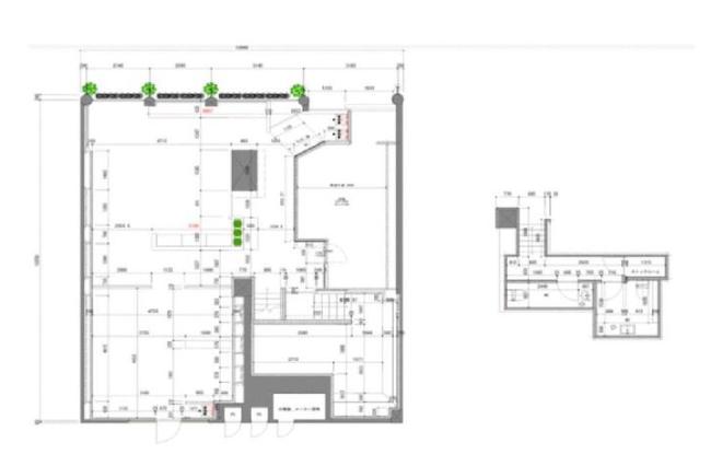
間取り

白川通り沿いの大型居抜き店舗|一乗寺エリアで駐車場共用21台付き

賃料: 44万円 専有面積:152.06㎡

物件名:一乗寺築田町テナント

所在地:京都府京都市左京区一乗寺築田町

物件概要

京都市左京区一乗寺築田町、叡山電鉄「一乗寺」駅から徒歩13分の立地にある1階店舗のご紹介です。 白川通りに面した視認性の高い建物で、店内は内装・設備ともに状態が良く、即営業も検討できる居抜き物件となっています。 専有面積は約152.06m2。鉄筋コンクリート造5階建の1階部分で、ゆとりある間取りが魅力です。 敷地内には隣接店舗と共用で21台分の駐車スペースがあり、来店型ビジネスにも適した環境が整っています。 賃料は44万円(保証金3ヶ月)。契約期間は5年の定期借家契約。 カフェやレストラン、美容・物販など、幅広い業種でご相談が可能です。 引渡し時期はご相談ください。

物件番号 17614
物件名 一乗寺築田町テナント
所在地 京都府京都市左京区一乗寺築田町
最寄駅/徒歩何分 叡山電鉄 一乗寺駅まで 徒歩13分
所在階 1階
賃料 44万円
保証金 3ヶ月
専有面積 152.06㎡
建物構造 RC(鉄筋コンクリート)階
取引態様 仲介
最終更新日 2025/10/23 14:55

同じエリアの物件

この物件を見た人はこちらの物件も見ています